Discreet
The Ferryman, Brownsea Road, Sandbanks
2 Bedrooms
2 Bathrooms
1 Reception Rooms
2 Bedrooms
2 Bathrooms
1 Reception Rooms
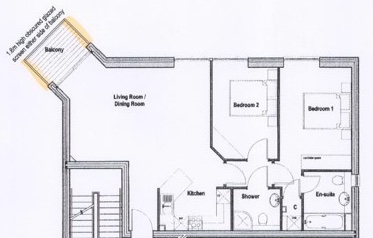
Set within an exclusive gated development on the world famous Sandbanks Peninsula, this delightful two double bedroom first floor apartment delivers an appealing blend of contemporary design, well planned living space and a superb coastal setting. The home has been thoughtfully arranged to create a relaxed yet refined layout, with accommodation extending to approximately 850 sq ft.
The approach is both private and welcoming, with secure gates opening to the communal drive and an allocated parking space. Stairs rise to the first floor, where the entrance to the apartment leads directly into the heart of the home. The impressive open plan kitchen, breakfast and living room is an uplifting space, wrapped around the central core of the apartment and filled with natural light from its feature glazing. Large doors open to a balcony with sea glimpses, perfectly positioned to enjoy the afternoon sun.
The modern fitted kitchen, dining and seating areas combine neatly to create a sociable and versatile room, ideal for everyday living. Both bedrooms are positioned to provide peace and comfort. The principal bedroom features fitted wardrobes and a beautifully finished ensuite. The second bedroom is a generous double with its own fitted wardrobe, served by a separate guest bathroom located just across the hallway. The overall specification is contemporary, complete and carefully considered, allowing the home to flow effortlessly from room to room.
This attractive apartment enjoys an enviable position just 300 yards from the award winning sandy beaches of Sandbanks and an equal distance to Poole Harbour, creating one of the most desirable lifestyle settings on the south coast. The peninsula offers an abundance of coastal activities, from paddleboarding and sailing to beachside walks and waterfront dining. Nearby hotspots include Rick Stein’s, Sandbanks Yacht Company and the cafés and restaurants of Canford Cliffs. Excellent transport connections provide easy access to Poole and Bournemouth, with London reachable by train from Poole Station. A superb choice for those seeking a refined coastal home.
Location
Living in Sandbanks, Poole, offers a luxurious coastal lifestyle characterized by stunning beaches, high-end real estate, and proximity to diverse amenities. Residents enjoy access to beautiful, Blue Flag-awarded beaches, water sports, and sailing opportunities. The area boasts upscale properties with breathtaking sea views, while nearby Poole provides shops, restaurants, and cultural attractions. The natural beauty of Poole Harbour, the English Channel, and the nearby Jurassic Coast enriches the living experience
Guide to
Sandbanks
Sandbanks is known for its award-winning stretch of golden sandy beaches and the most expensive coastal real estate in the world. Home to the largest natural harbour in Europe, people flock to the area from far and wide to enjoy the lifestyle and magnificent scenery.
To arrange a viewing on this property, just fill out the form below.
One of our team will be in touch shortly to confirm your appointment










