Sold
Panorama Road, Poole
Offers Over
2 Bedrooms
1 Bathrooms
2 Reception Rooms
2 Bedrooms
1 Bathrooms
2 Reception Rooms
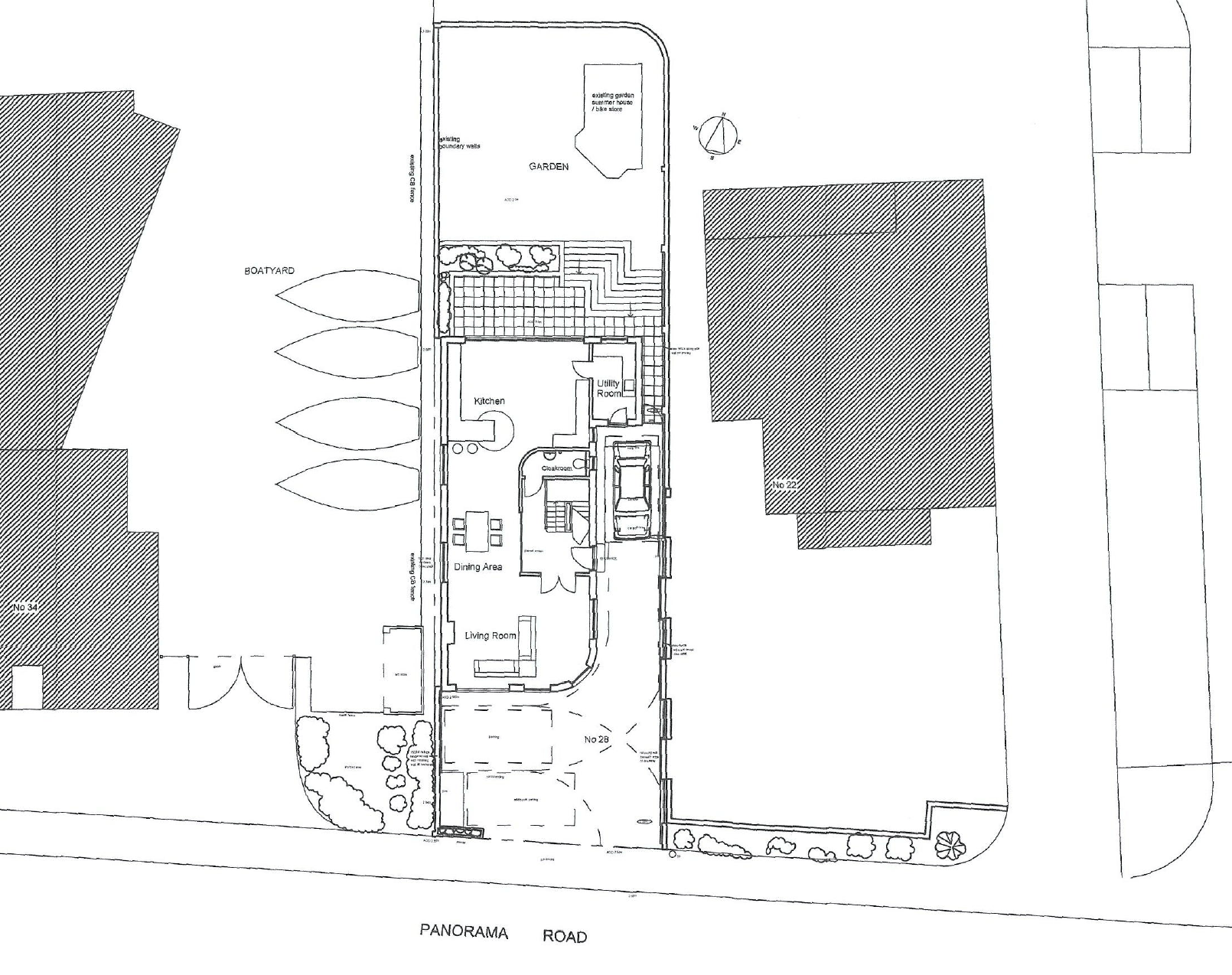
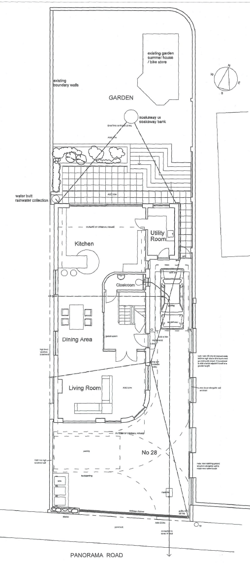
This delightful retreat in Sandbanks offers one of the last remaining opportunities to acquire a plot in Panorama Road. The property has planning permission which was granted in October 2018, to build a luxurious four bedroom detached house extending to approximately 3000 sq ft over three floors, with fantastic views over the harbour. The bungalow is positioned on a good sized plot offering parking for several cars which within its self is a rarity on sandbanks. The current planning consent is to be constructed 1.5 meters above ground level giving ever more elevated views for the rear elevations. in addition to the terracing, there is a private rear walled garden. Adjacent to the bungalow is the Sandbanks Yacht Club with its restaurant, members gym and slip way, as well as moorings and jet ski storage. There is a planning constraint on on the boat yard adjacent, specifying it must always remain as a boat yard so the existing views are protected. The all year round dog friendly beaches can be found just 300 meters away. For those not looking to rebuild their own home, a significant refurbishment would further enhance the existing layout which currently consists of a large open plan living dining room, kitchen breakfast room and ground floor bathroom. On the first floor are two large bedrooms and a cloakroom. The rear bedroom has access onto a large terrace which enjoys lovely views over the boatyard and harbour. The full planning provision can be found at https://boppa.poole.gov.uk application numberAPP/18/00895/F.
Location
Internationally acknowledged, Sandbanks boasts the largest natural harbour in Europe (the second largest natural harbour in the world) with miles of golden sand and sheltered waters. It is perfect for either learning the latest water sport or simply lazing on the beach in the sun. The beautiful award winning sandy beaches are only a short walk away while the open sea offers some of the best sailing and coastline right on your doorstep. The Sandbanks Chain Ferry crosses the short stretch of water across to the Purbecks, giving access to Shell Bay, Swanage and the rest of the magnificent Jurassic coastline and stunning Purbeck countryside. There are a number of places in which to dine on Sandbanks, as well as Canford Cliffs village and Lilliput village, which are within easy reach. Sandbanks is also the home to the Royal Motor Yacht Club and Sandbanks Yacht Club. Local mainline stations connect to London Waterloo in just under 2 hours. For international connections, Bournemouth Airport is 14 miles away.
Guide to
Sandbanks
Sandbanks is known for its award-winning stretch of golden sandy beaches and the most expensive coastal real estate in the world. Home to the largest natural harbour in Europe, people flock to the area from far and wide to enjoy the lifestyle and magnificent scenery.
To arrange a viewing on this property, just fill out the form below.
One of our team will be in touch shortly to confirm your appointment



























